Комплектное распределительное устройство (КРУ А19-35)

Оставить заявку

Условия эксплуатации

Условия эксплуатации:
  • температура окружающего воздуха от -25 до +40 °С;
  • высота над уровнем моря не более 1000 м;
  • влажность 80% при температуре плюс 20°С;
  • окружающая среда невзрывоопасная, не содержащая взрывоопасной пыли, агрессивных газов в концентрациях, разрушающих металлы и изоляцию;

Основные параметры

Основные параметры

Наименования параметров

Значения параметров

Номинальное напряжение, кВ

35

Наибольшее рабочее напряжение, кВ

40,5

Номинальный ток сборных шин, А

 до 1600

Номинальный ток главных цепей камер, А

630; 1250; 2500

Номинальный ток отключения главных коммутационных аппаратов камер, кА

20; 31,5

Номинальный ток электродинамической стойкости главных цепей ячеек КРУ, кА

40; 51

Ток термической стойкости (кратковременный ток) при времени протекания 3 с, кА

25; 31

Номинальное напряжение вторичных цепей (постоянного/переменного тока), В

110/220

Вид изоляции

воздушная

Вид присоединений

кабельное

Условия обслуживания

одностороннее

Степень защиты ГОСТ 14254-96

Степень защиты исполнения IP20
Степень защиты при открытых дверях релейных шкафов и нахождении выдвижного элемента ячейки в контрольном положении - IР00

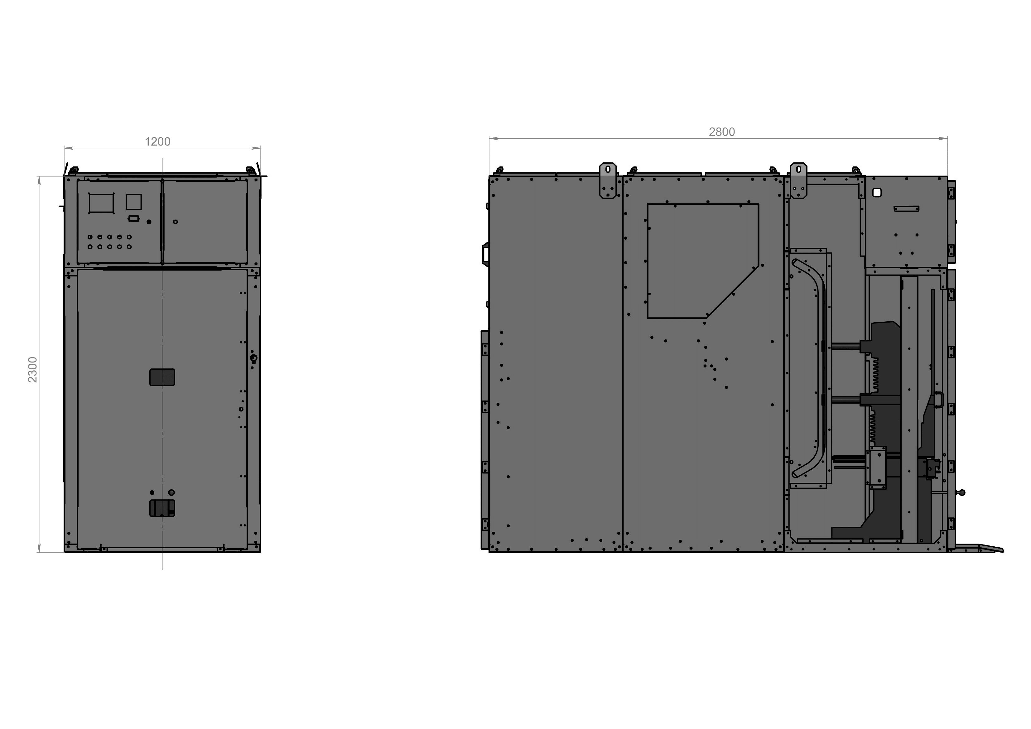
Габаритные размеры ВхГхШ, мм

2300х2900х1200

 

Схемы

Комплектное распределительное устройство (КРУ А19-35)

Комплектное распределительное устройство серии КРУ-А19-35 (Далее – КРУ А19-35) предназначено для распределения электрической энергии трехфазного переменного тока частотой 50 Гц, номинальным напряжением 35 кВ в сетях с изолированной или заземленной через дугогасящий реактор или резистор нейтралью.
Ячейка КРУ представляет собой сборную металлоконструкцию, составные части которой соединены между собой с помощью заклепок. Все металлические детали корпуса ячейки изготавливаются из гнутого профиля, изготовленного из листа толщиной не менее 2 мм. Внутри корпуса располагаются аппараты и арматура главной и вспомогательной цепей. Условие обслуживания ячеек –двустороннее. Для безопасности обслуживания и локализации аварий корпус разделен на изолированные отсеки.

Условия эксплуатации
Условия эксплуатации:
  • температура окружающего воздуха от -25 до +40 °С;
  • высота над уровнем моря не более 1000 м;
  • влажность 80% при температуре плюс 20°С;
  • окружающая среда невзрывоопасная, не содержащая взрывоопасной пыли, агрессивных газов в концентрациях, разрушающих металлы и изоляцию;
Основные параметры

Основные параметры

Наименования параметров

Значения параметров

Номинальное напряжение, кВ

35

Наибольшее рабочее напряжение, кВ

40,5

Номинальный ток сборных шин, А

 до 1600

Номинальный ток главных цепей камер, А

630; 1250; 2500

Номинальный ток отключения главных коммутационных аппаратов камер, кА

20; 31,5

Номинальный ток электродинамической стойкости главных цепей ячеек КРУ, кА

40; 51

Ток термической стойкости (кратковременный ток) при времени протекания 3 с, кА

25; 31

Номинальное напряжение вторичных цепей (постоянного/переменного тока), В

110/220

Вид изоляции

воздушная

Вид присоединений

кабельное

Условия обслуживания

одностороннее

Степень защиты ГОСТ 14254-96

Степень защиты исполнения IP20
Степень защиты при открытых дверях релейных шкафов и нахождении выдвижного элемента ячейки в контрольном положении - IР00

Габаритные размеры ВхГхШ, мм

2300х2900х1200